方案展示
設計說明
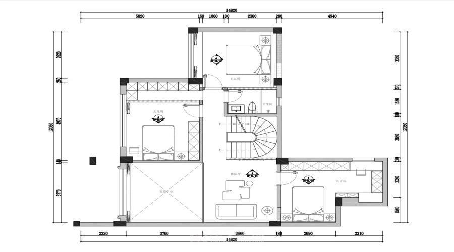
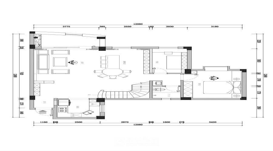
業主本來就住在這個小區,屬于改善置換,夫妻2人,有1兒一女,預留長輩房間,業主講風水,房子望江,考慮南北對流,樓梯希望可以通到屋面,餐廳位置比較小,設計上考慮樓梯的造型和餐廳位置的使用
[展開]
關注我們
分享到
微信

立即預約
在線咨詢
在線客服
公安部備案號 44010602004978號